
Eidylia_Greece
Design: Olon Architects
Team: Jai Mexis, Sofia Badeka, Mike Gkouliamakis
Location: Mt Kithaironas, Greece
Status: Under permit process
Year: 2016
Creation of a large community where individuals would be able to embark on a self-discovery journey while connected to nature.
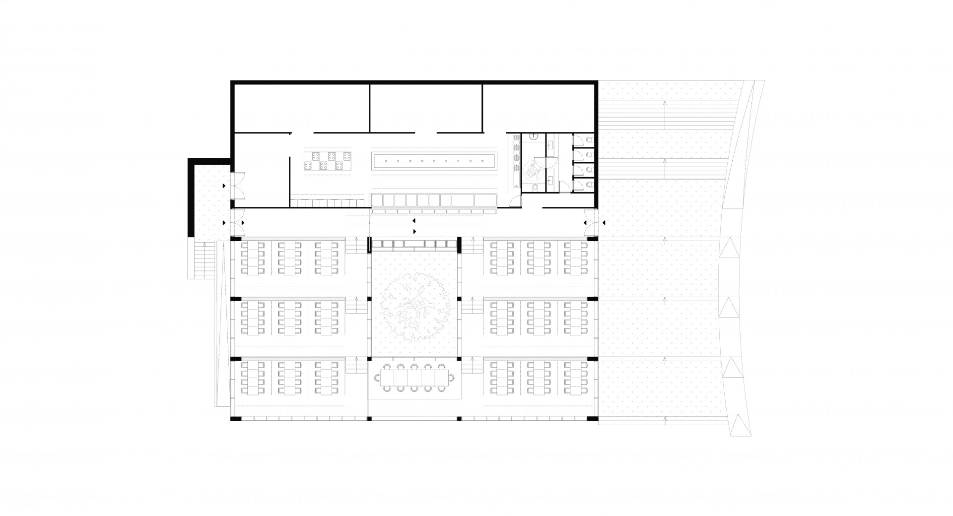
The client approached Olon Architects with the vision of creating a large community where individuals would be able to embark on a self-discovery journey while connected to nature. The striking landscape of Mt. Kithaironas called for an outward, open to the vistas design proposal, based in terms of plan on the sacred geometry of Mandala.